Phân khu Tinh Hoa là một trong 3 phân khu thấp tầng tại “Thành phố thương mại” Vinhomes Global Gate. Sở hữu tọa độ vàng ôm trọn hồ Thiên Nga 32 ha và công viên Xứ Sở Thần Tiên – 2 kỳ quan hàng đầu của Vinhomes Global Gate Cổ Loa, kết hợp phong cách kiến trúc Manhattan hiện đại, phân khu Tinh Hoa là sự lựa chọn hoàn hảo cho một cuộc sống sôi động & thời thượng kiểu Mỹ trong lòng khu đô thị đẳng cấp & đáng sống bậc nhất Hà Nội.
Phân khu Tinh Hoa Vinhomes Global Gate

Tổng quan dự án Phân khu Tinh Hoa Vinhomes Global Gate
Diện tích phân khu: Đang cập nhật
Mô hình phát triển: Phân khu mở
Quy mô phát triển: 1.752 căn nhà ở thấp tầng
- Biệt thự đơn lập: 60 căn
- Biệt thự song lập: 124 căn
- Biệt thự tam lập: 6 căn
- Biệt thự tứ lập: 80 căn
- Liền kề: 1.482 căn
Thời gian bàn giao: Năm 2025
Hình thức sở hữu: Sổ đỏ lâu dài
Vị trí Phân khu Tinh Hoa Vinhomes Global Gate
Phân khu Tinh Hoa nằm tại góc phía Tây khu đô thị Vinhomes Global Gate. Nằm tiếp giáp với phân khu là đường Trường Sa (Quốc lộ 5A) rộng 72 m – Trục giao thông chính nối giữa các khu vực phía Đông, phía Bắc Hà Nội với các tỉnh thành Thái Nguyên, Vĩnh Phúc, Hưng Yên, Hải Dương, Hải Phòng; và cả đường thành phố TP5 cắt ngang khu đô thị Vinhomes Cổ Loa, nên nhìn chung kết nối giao thông nội – ngoại khu rất tiện lợi.
Tuy nhiên, lợi thế lớn nhất của phân khu Tinh Hoa phải kể đến vị trí độc tôn nằm ôm trọn hồ Thiên Nga 32 ha và công viên Xứ Sở Thần Tiên 5.6 ha, là 2 kỳ quan hàng đầu của khu đô thị Vinhomes Global Gate. Đồng thời, tiếp giáp phân khu Tinh Hoa còn là trung tâm hội chợ triển lãm quốc gia rộng 90 ha, chuỗi khách sạn 5 sao, văn phòng hạng A, trường học Vinschool, Brighton College, mang đến lợi thế rất lớn trong việc kinh doanh buôn bán lẫn an cư lạc nghiệp.

Biệt thự đơn lập
Biệt thự đơn lập Tinh Hoa có 60 căn, diện tích đất từ 178.3 – 313.8 m2 (Chủ yếu là 212.5 m2), mật độ xây dựng khoảng 50%, chiều cao 4 tầng, nằm chủ yếu dọc theo trục đường thành phố TP5, đối diện công viên Xứ Sở Thần Tiên và hồ Thiên Nga 32 ha. Đây là dòng sản phẩm VIP nhất tại phân khu Tinh Hoa nói riêng và Vinhomes Global Gate Cổ Loa nói chung, để ở hoặc kinh doanh đều vô cùng tuyệt vời. Hiện tại, giá bán biệt thự đơn lập Tinh Hoa nằm trong khoảng từ 100 – 200 tỷ.
Biệt thự song lập
Biệt thự song lập Tinh Hoa có 124 căn, diện tích đất chủ yếu từ 127.5 – 147.6 m2, mật độ xây dựng 55 – 58%, chiều cao 4 tầng, nằm chủ yếu dọc theo 2 bên các công viên Swan Park, Rose Park, Pearl Park. Đây cũng là một trong những dòng sản phẩm đẳng cấp bậc nhất Vinhomes Cổ Loa, giá thành không đắt đỏ như biệt thự đơn lập, song vẫn đáp ứng chất sống “resort” nên vẫn được người có tiền ưa chuộng. Hiện tại, giá bán biệt thự song lập Tinh Hoa nằm trong khoảng từ 50 – 60 tỷ.
Biệt thự tam lập & tứ lập
Biệt thự tam lập & tứ lập Tinh Anh có 86 căn, diện tích đất chủ yếu 127.5 m2, mật độ xây dựng 65%, chiều cao tầng 4, nằm dọc theo 3 trục đường Hoàng Gia 4, 5, 6. Về bản chất, biệt thự tam lập & tứ lập đều là 4 căn biệt thự ghép lại, nhưng do tam lập nằm ở vị trí góc tam giác nên khuyết 1 căn. Điểm nhấn của 2 dòng sản phẩm nằm ở diện tích & giá thành vừa phải, song vẫn đáp ứng những tiêu chuẩn biệt thự nhất định. Hiện tại, giá bán biệt thự tam lập & tứ lập nằm trong khoảng từ 40 – 42 tỷ.
Liền kề
Liền kề (Nhà phố) Tinh Hoa có 1.482 căn, diện tích đất chủ yếu từ 62.5 – 90 m2 (Lô góc 87.5 – 201.4 m2), mật độ xây dựng trung bình 84%, chiều cao 5 tầng, nằm tại hầu hết các trục đường nội bộ Tinh Hoa. Đây cũng là dòng sản phẩm chủ đạo của phân khu Tinh Hoa (chiếm 84% tổng sản phẩm), phù hợp với những khách hàng có tài chính tốt, mua để ở, kinh doanh hoặc làm tài sản tích lũy. Hiện tại, giá bán liền kề (nhà phố) Tinh Hoa nằm trong khoảng từ 17 – 36 tỷ.
Mặt bằng tổng thể
Chất sống Manhattan trong lòng thành phố thương mại quốc tế
Phân khu Tinh Hoa là phân khu có quy mô lớn nhất trong 3 phân khu thấp tầng Vinhomes Global Gate. Tại nơi đây, những dãy biệt thự liền kề được xây dựng mô phỏng theo những khu phố sầm uất tại quận Manhattan – Newyork – Hoa Kỳ, nổi bật bởi những khối nhà cô đọng được ốp gạch cách điệu mặt ngoài, kết hợp ô cửa sổ vuông rộng và mái bằng đặc trưng. Đây là lối kiến trúc đương đại đã từng được Vingroup sử dụng tại phân khu The Manhattan Vinhomes Imperia Hải Phòng và rất được giới thượng lưu ưa chuộng bởi vẻ đẹp lịch lãm, thời thượng, tái hiện lối sống xa hoa của giới thượng lưu “Xứ sở Cờ Hoa”.
Không chỉ sở hữu kiến trúc sang trọng, phân khu Tinh Hoa còn ghi dấu ấn mạnh mẽ bởi sở hữu không gian cảnh quan đẹp nhất Vinhomes Cổ Loa. Nằm bên trong phân khu Tinh Hoa là bộ 3 công viên Swan Park, Rose Park, Pearl Park rộng lớn, mỗi công viên đều có riêng khu bể bơi ngoài trời mang phong cách “resort”, các sân thể thao, sân chơi trẻ nhỏ, đường dạo bộ ngập tràn cây và hoa. Cộng hưởng với công viên Xứ Sở Thần Tiên rộng 5.6 ha và ha hồ Thiên Nga 32 ha đối diện, phân khu Tinh Hoa thực sự đã tái hiện một lối sống “đậm chất Mỹ“: thời thượng, hiện đại, nhưng không kém phần hòa quyện cùng thiên nhiên.
![]() |
![]() |
![]() |
Loại hình phát triển
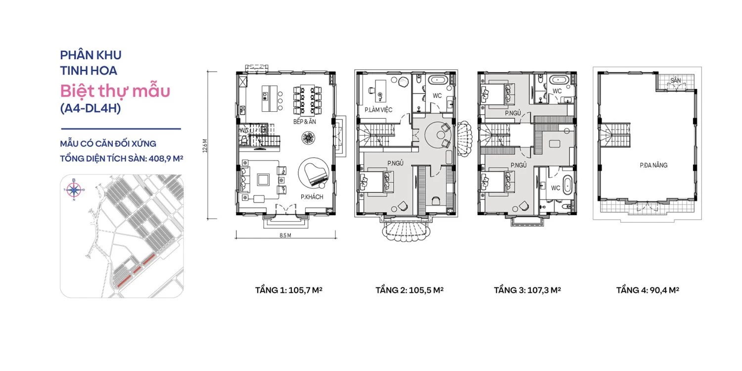
Biệt thự đơn lậpBiệt thự đơn lập Tinh Hoa có 60 căn, diện tích đất từ 178.3 – 313.8 m2 (Chủ yếu là 212.5 m2), mật độ xây dựng khoảng 50%, chiều cao 4 tầng, nằm chủ yếu dọc theo trục đường thành phố TP5, đối diện công viên Xứ Sở Thần Tiên và hồ Thiên Nga 32 ha. Đây là dòng sản phẩm VIP nhất tại phân khu Tinh Hoa nói riêng và Vinhomes Global Gate Cổ Loa nói chung, để ở hoặc kinh doanh đều vô cùng tuyệt vời. Hiện tại, giá bán biệt thự đơn lập Tinh Hoa nằm trong khoảng từ 100 – 200 tỷ. |
Biệt thự song lậpBiệt thự song lập Tinh Hoa có 124 căn, diện tích đất chủ yếu từ 127.5 – 147.6 m2, mật độ xây dựng 55 – 58%, chiều cao 4 tầng, nằm chủ yếu dọc theo 2 bên các công viên Swan Park, Rose Park, Pearl Park. Đây cũng là một trong những dòng sản phẩm đẳng cấp bậc nhất Vinhomes Cổ Loa, giá thành không đắt đỏ như biệt thự đơn lập, song vẫn đáp ứng chất sống “resort” nên vẫn được người có tiền ưa chuộng. Hiện tại, giá bán biệt thự song lập Tinh Hoa nằm trong khoảng từ 50 – 60 tỷ. |
![]() |
![]() |
Biệt thự tam lập & tứ lậpBiệt thự tam lập & tứ lập Tinh Anh có 86 căn, diện tích đất chủ yếu 127.5 m2, mật độ xây dựng 65%, chiều cao tầng 4, nằm dọc theo 3 trục đường Hoàng Gia 4, 5, 6. Về bản chất, biệt thự tam lập & tứ lập đều là 4 căn biệt thự ghép lại, nhưng do tam lập nằm ở vị trí góc tam giác nên khuyết 1 căn. Điểm nhấn của 2 dòng sản phẩm nằm ở diện tích & giá thành vừa phải, song vẫn đáp ứng những tiêu chuẩn biệt thự nhất định. Hiện tại, giá bán biệt thự tam lập & tứ lập nằm trong khoảng từ 40 – 42 tỷ. |
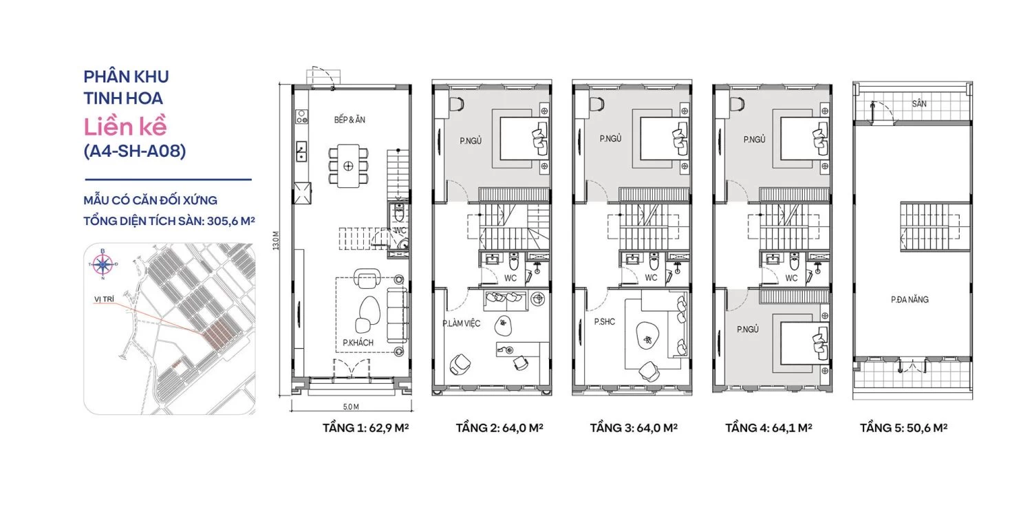
Liền kềLiền kề (Nhà phố) Tinh Hoa có 1.482 căn, diện tích đất chủ yếu từ 62.5 – 90 m2 (Lô góc 87.5 – 201.4 m2), mật độ xây dựng trung bình 84%, chiều cao 5 tầng, nằm tại hầu hết các trục đường nội bộ Tinh Hoa. Đây cũng là dòng sản phẩm chủ đạo của phân khu Tinh Hoa (chiếm 84% tổng sản phẩm), phù hợp với những khách hàng có tài chính tốt, mua để ở, kinh doanh hoặc làm tài sản tích lũy. Hiện tại, giá bán liền kề (nhà phố) Tinh Hoa nằm trong khoảng từ 17 – 36 tỷ. |
![]() |
![]() |
Giá bán
| Loại hình | Diện tích đất | Mật độ xây dựng | Chiều cao | Giá bán |
|---|---|---|---|---|
| Liền kề thường | 62.5 – 90 m2 | 84% | 5 tầng | 17 – 36 tỷ |
| Liền kề góc | 87.5 – 201.4 m2 | 70 – 80% | 5 tầng | 28 – 60 tỷ |
| Biệt thự tứ lập | 127.5 m2 | 65% | 4 tầng | 40 – 42 tỷ |
| Biệt thự tam lập | 127.5 m2 | 65% | 4 tầng | 40 – 42 tỷ |
| Biệt thự song lập | 127 – 147.6 m2 | 55 – 58% | 4 tầng | 50 – 60 tỷ |
| Biệt thự đơn lập | 178.3 – 313.8 m2 | 50% | 4 tầng | 100 – 200 tỷ |






